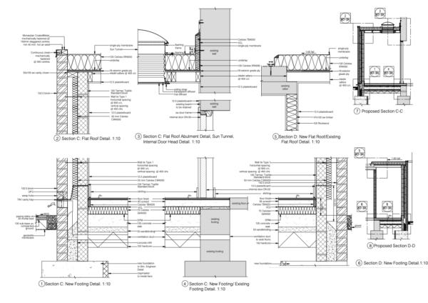
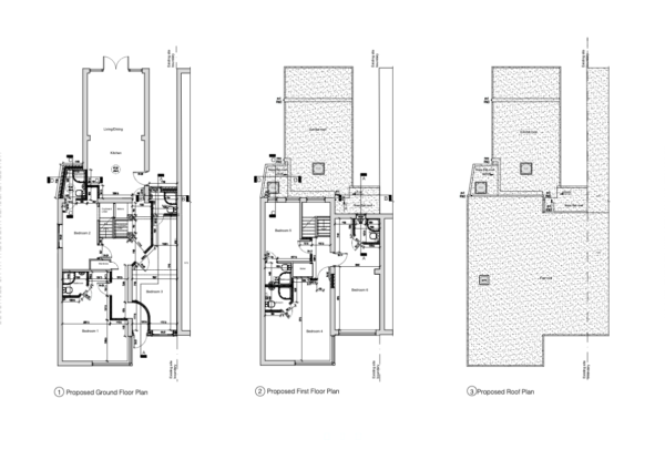
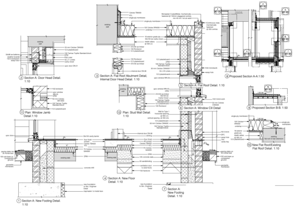
Alterations to existing dwelling house to create 6 bedroom HMO in Mill Lane, Sawston
The ex-Council House was bought by the private developer to convert it into the House for Multiple Occupation (HMO). The proposed improvements include replacing the existing car port with new guest ensuite bedroom and adding two rear extensions. The internal modifications of the house aimed to provide the house with the spacious communal living dining room and kitchen.









