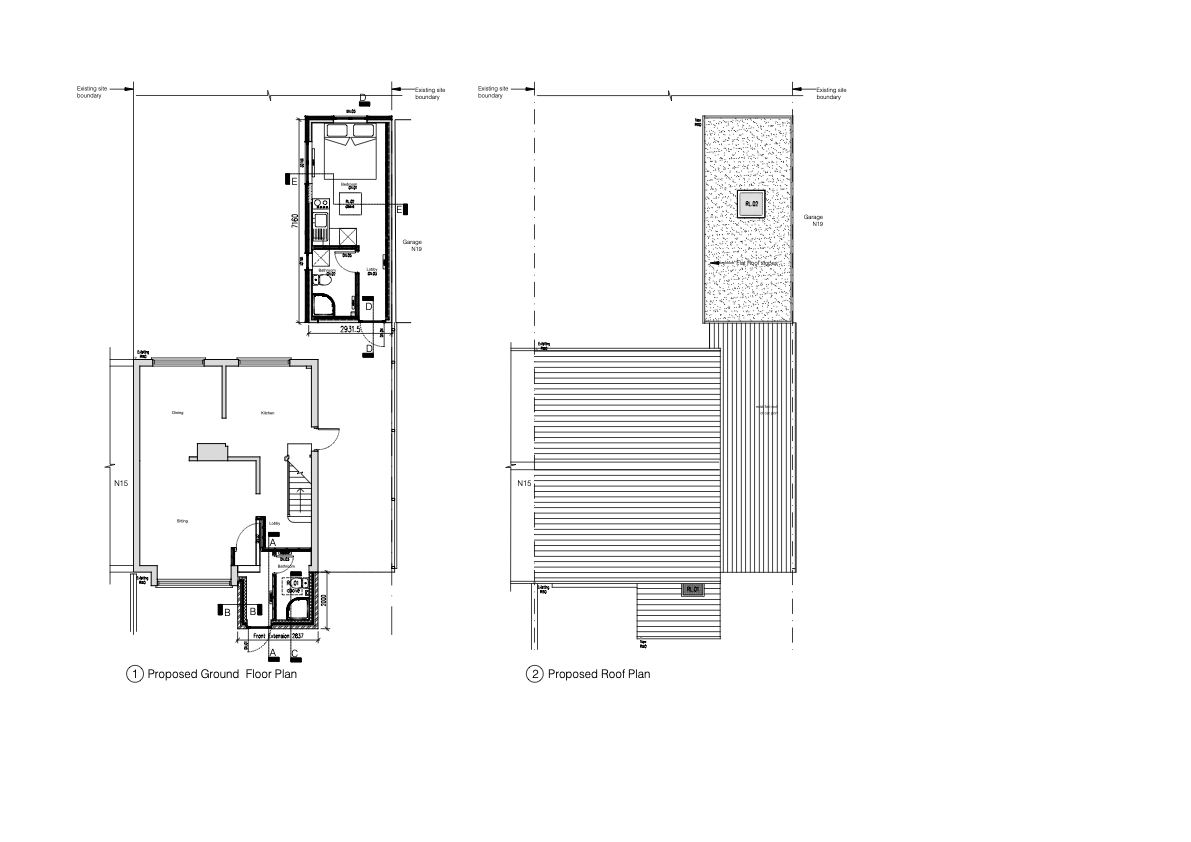
Alterations to existing garage to form an Annex, Single Storey Front and Rear Extensions in Desmond Avenue, Cambridge
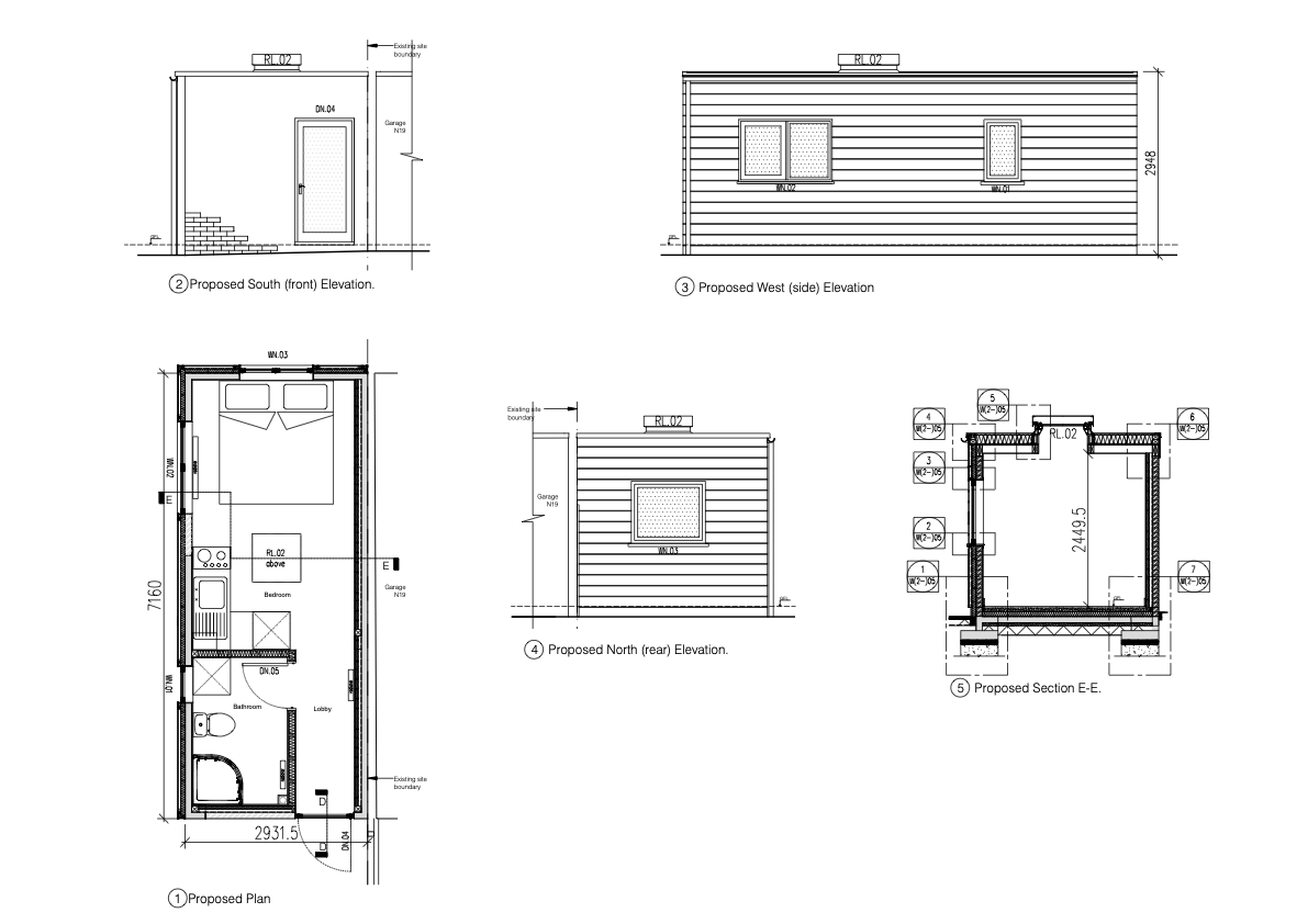
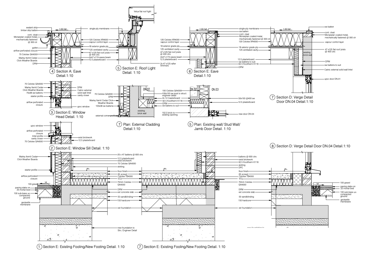
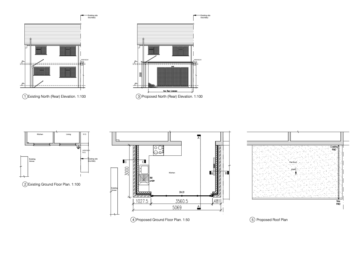
The Annex provided the main house with an additional bedroom and bathroom. Walls, floor and roof of the existing garage were insulation according to requirements of the Part L Building Regulations. The new flat roof is raised to comply with minimum head height and the NHBC standards for warm flat roofs. The Front Extension is of 2m x 2.83m and provides the house with a lobby and ground floor bathroom. The rear extension gives the house spaciouse dining area.




