TVR Design Consultancy ~ Architectural services,

research & teaching programmes in UK and Europe.

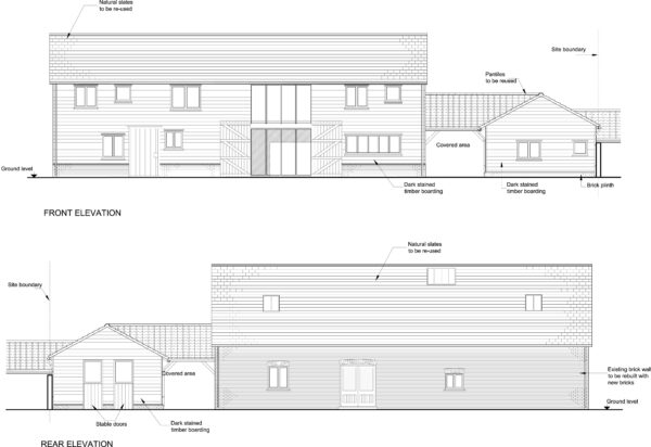
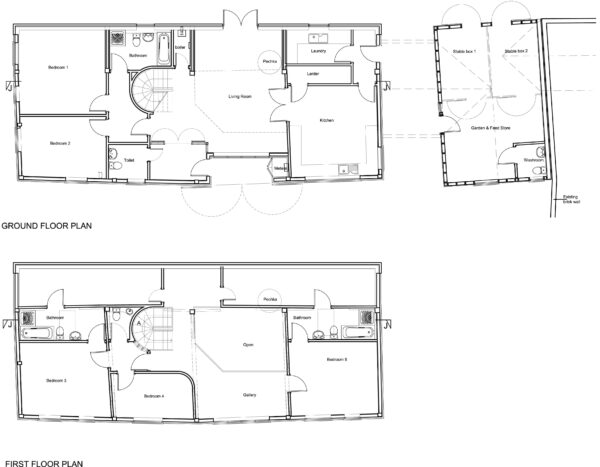
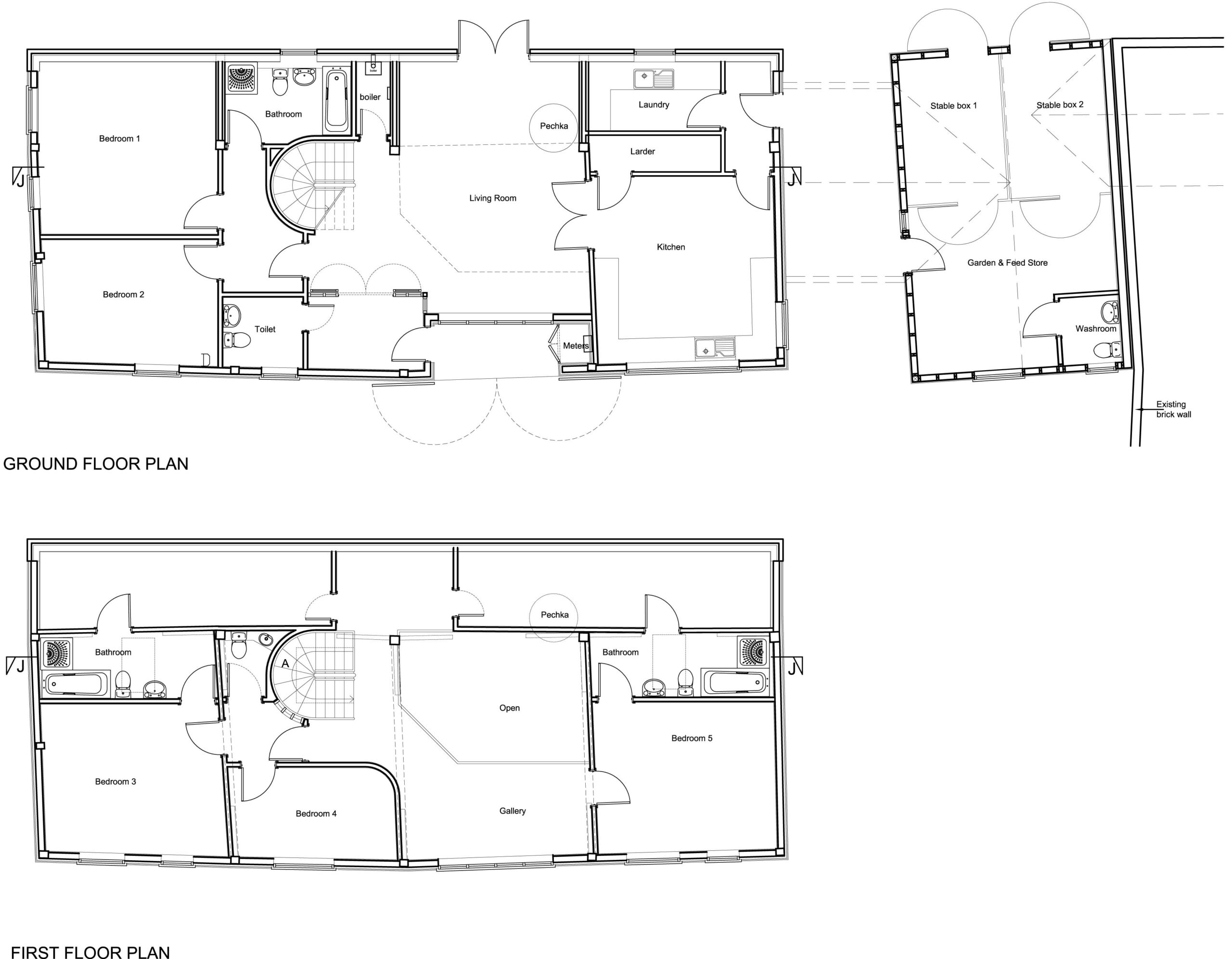
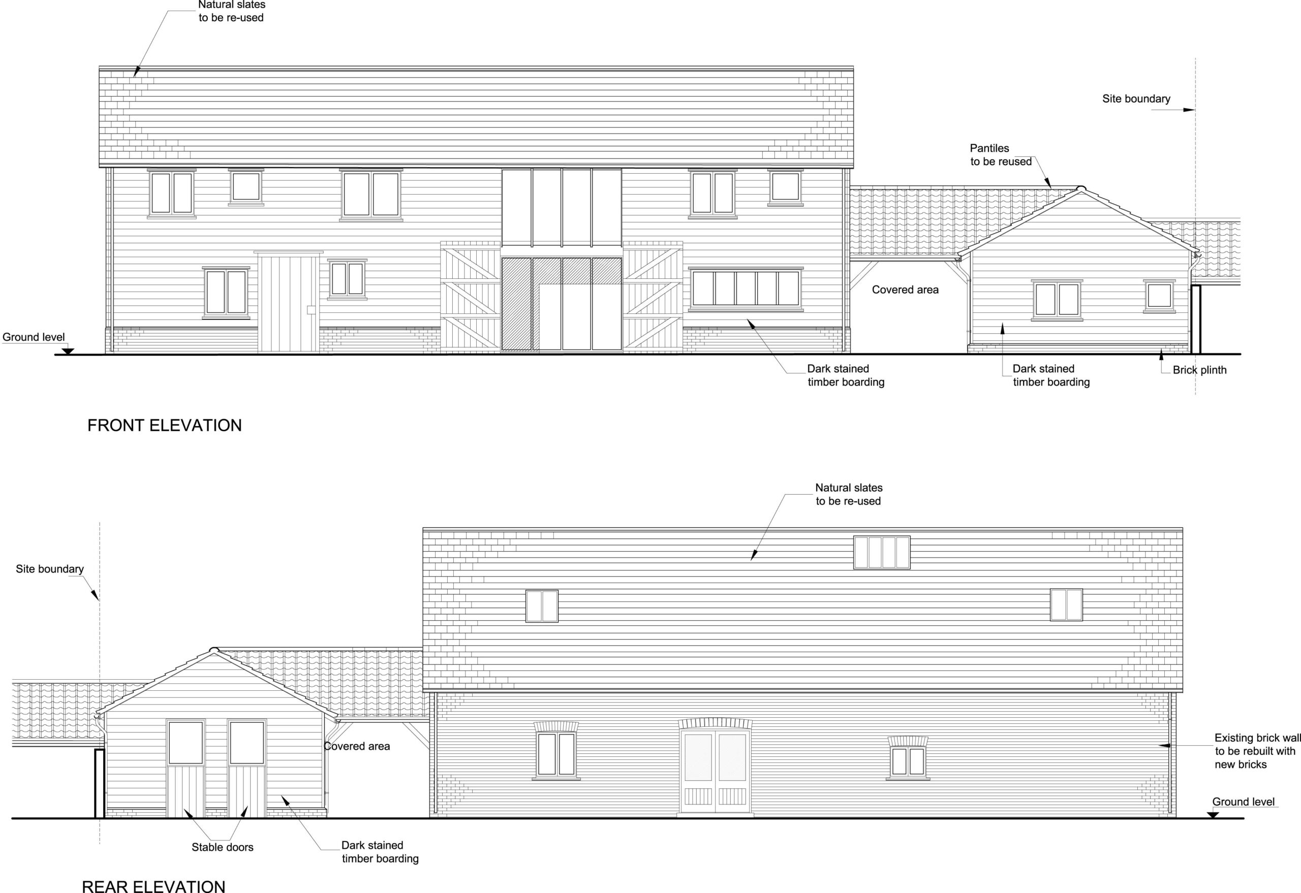
Barn Conversion in Willingham

The site is located in the concervation ares of Willingham with the close proximity of another converted barn. Modern barn conversion is a beautiful example of sensitive approach to local heritage.