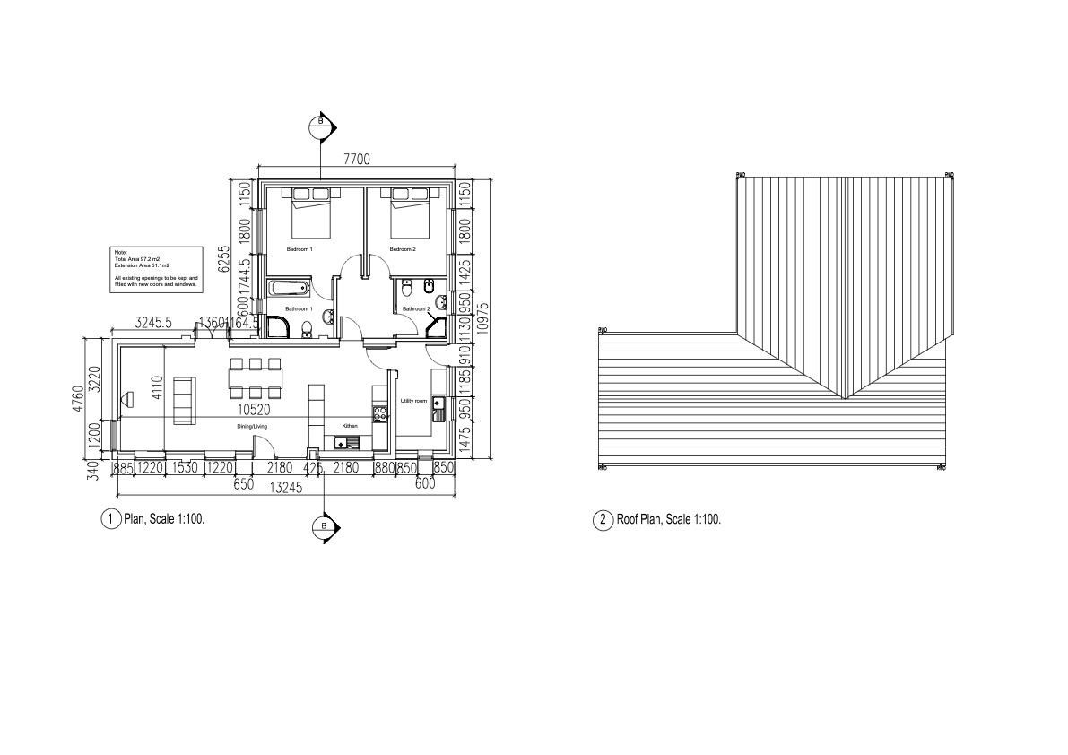
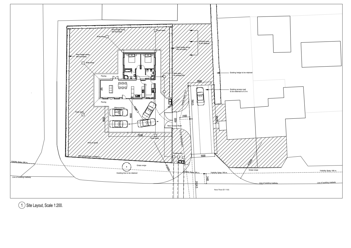
Conversion of Agricultural Building to Residential House with Ground Floor Extension in Burwell
The proposed dwelling house provide a necessary accomodation for workers of Nesslands Boarding Kennels. The converted house has the same agricultural appearance as the old building. The existing window openings and garage lintels were reused. The new extension is timber cladded to give it a barn appearance, similar to the barn located in the neighbouring property. Slates are proposed as a roof material to match the slates used in the area.


