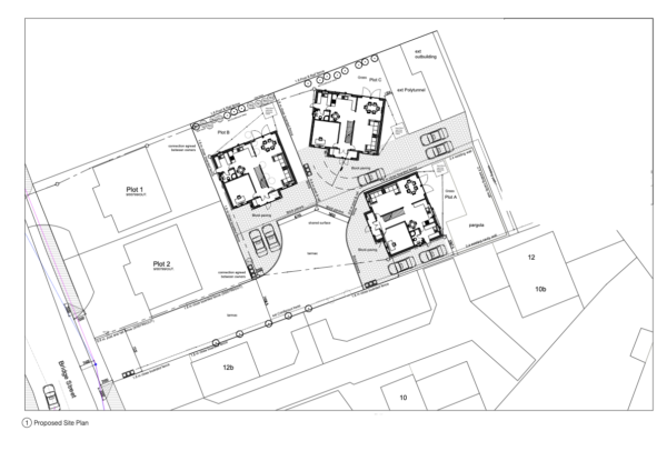
Custom/self built housing development at Horticultural Site in Mepal
The overall aim was to create a sustainable detached two storey low-energy family homes, which have a positive impact on the local area. The proposal contribute to archiving 5 year housing land supply and the supply of self-build plots in the district. Thus the benefits of the proposal outweigh its potential harm to the rural character of the countryside.

