TVR Design Consultancy ~ Architectural services,

research & teaching programmes in UK and Europe.

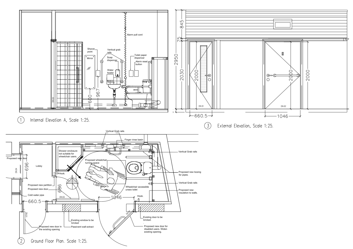
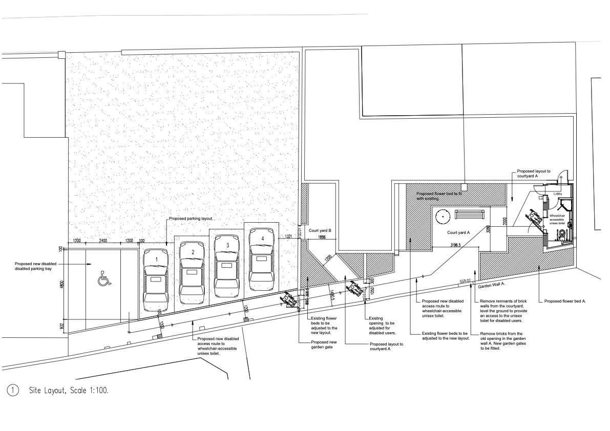
Disability improvements at Muslim College, Cambridge