TVR Design Consultancy ~ Architectural services,

research & teaching programmes in UK and Europe.

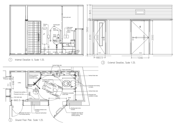
Disability improvements at Muslim College, Cambridge