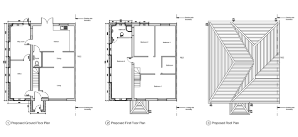
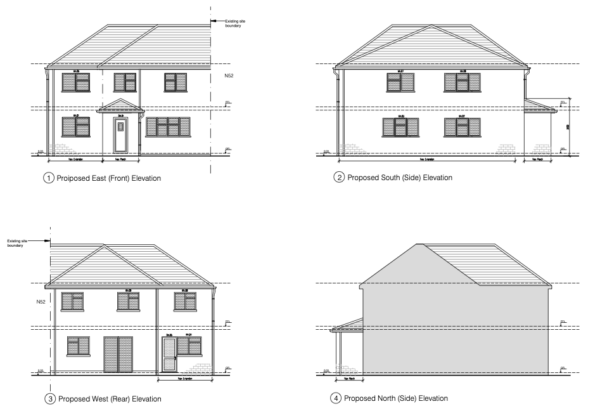
First Floor Side Extension – Modern Elegance in 1960s Terrace, Slough
Step into the future of architectural design with our latest project—a stunning first-floor side extension situated at the end of a charming 1960s terrace in Slough. This transformation seamlessly marries contemporary elegance with the timeless character of the neighborhood.
As pioneers in innovative design, we’ve redefined the possibilities for property expansion. The first-floor extension not only enhances the living space but also adds a touch of sophistication to the existing structure. Its strategic placement ensures a harmonious blend with the surrounding architecture, setting a new standard for modern living in the historical locale.
Experience the seamless transition between eras as we breathe new life into this classic terrace. Explore our portfolio and witness the evolution of architectural excellence.


