TVR Design Consultancy ~ Architectural services,

research & teaching programmes in UK and Europe.

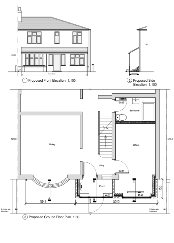
Front extension and Garage Conversion in Cherry Hinton, Cambridge

The property had an integrated garage. It was insulated, extended to the front and lined up with the existing porch under lean-to roof. These improvements provided the house with the new office space and new bathroom.