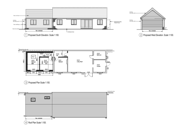
Granny Annex in Willingham
The property is located in the middle of Willingham in the conservation area. The proposed extension to the exising Annex contains two bedrooms and a small corridor, connecting these rooms to the existing Annex. The roof ridge of the proposed extension is set down from the existing one and the whole extension is set in from the south elevation of the existing annex. The roof pan tiles of the new extension match the existing tiles on the Annex.



