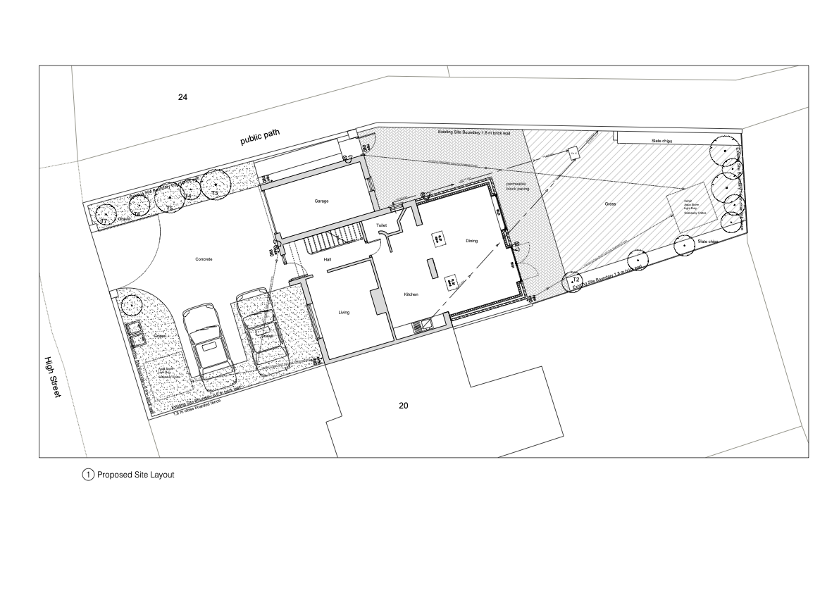
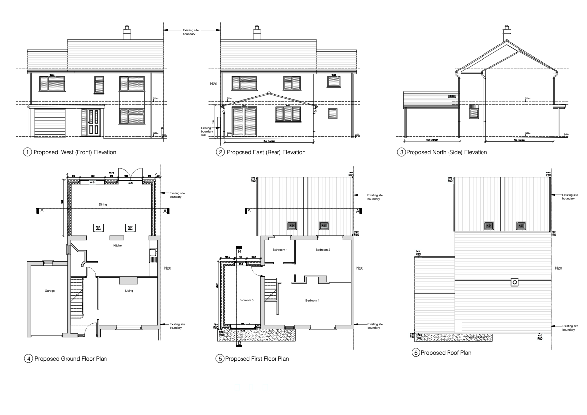
Ground Floor Rear Extension and First Floor Side Extension above the existing garage in Mepal
The property is a typical good quality late 20th Century semidetached house with integrated side garage. The Rear Extension seeks to increase the size of the dining area, more suitable for needs of a modern family. Patio doors and roof lights in rear extension allow for maximum daylight into the existing kitchen as well as providing a more direct link with the garden.The First Floor Side Extension above the existing garage provided the house with the new first floor bedroom with en-suite bathroom.





