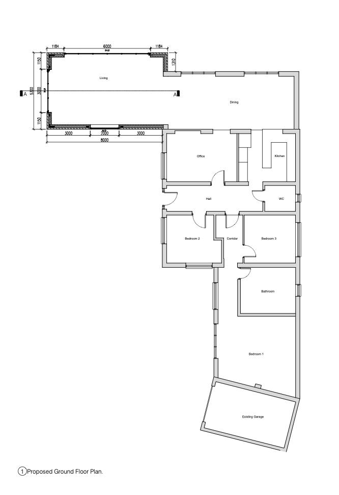
Ground Floor Side Extension in Cottanham
The property is a yellow brick detached bungalow under a tiled roof, located on the outskirts of Cottenham, overlooking a beautiful and secluded lake and picturesque open countryside. The Side Extension provided additional living space to the existing house, more suitable for needs of a modern family. It is projected from the side of the existing side extension by 6 m towards the Lake and it is 5 m wide. It was offset from the rear wall of the existing side extension, providing a small courtyard for the existing dining room and lined up with the East wall of existing rear flat roof extension to create a continuity of the principal (East) elevation of the house.



