House Improvements and Two Storey Extension in Longstanton
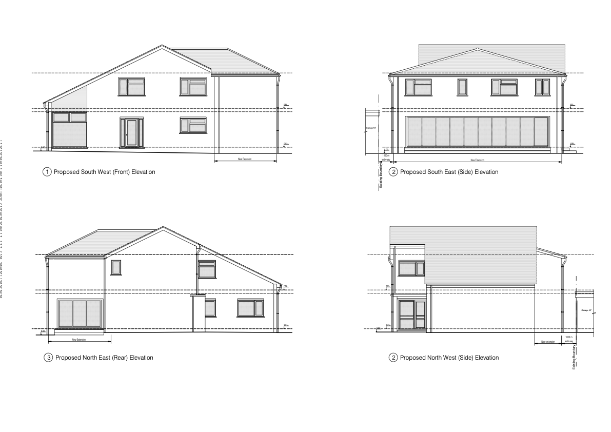
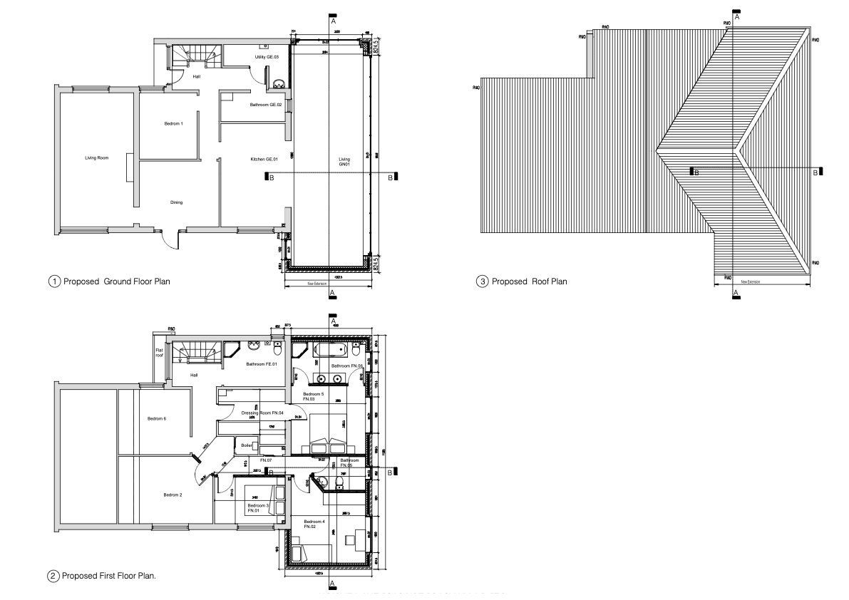
The Proposed Extension is connected to the existing dwelling house and provide an additional ground floor dining/living space and two bedrooms with in-suite bathrooms on the first floor. The design approach to the proposed materials, doors and windows is to match its elements with the existing house and to keep it subservient. The pitched roof of the Extension is lower than the roof of the existing dwelling house. To reduce the impact of the Extension on the local amenity, the south part of the roof has a hip, sloping downward to the south wall of the Extension. The angle of the hip the Extension, is matching the angle of the roof of the existing house so the principal elevation has roofs of matching angles.


