Housing Developmnt on the land off Rampton Road, Willingham
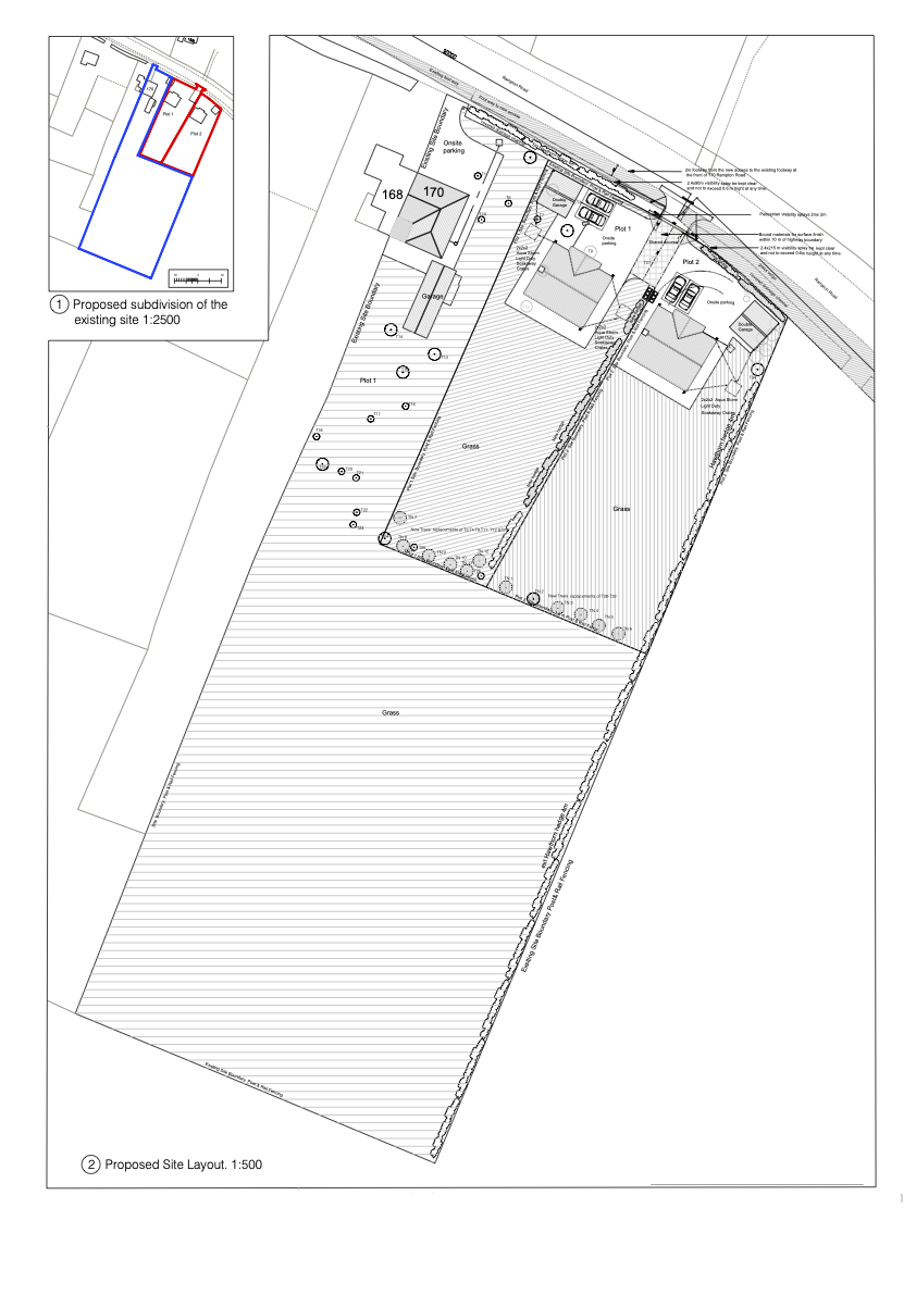
The site is located outside the village development framework in the countryside, containing the existing semidetached dwelling house and a paddocks from the South and East. The proposal was submitted to the Council for the outline planning permission for subdivision of existing site into three Plots and erection of two 4-bedroom dwelling houses with garages using the old access to the paddock for the new shared access to Plots. An indicative Site Plan has been prepared to assist the consideration of the proposal. The proposal is sustainable by nature and fits well with the village framework.
