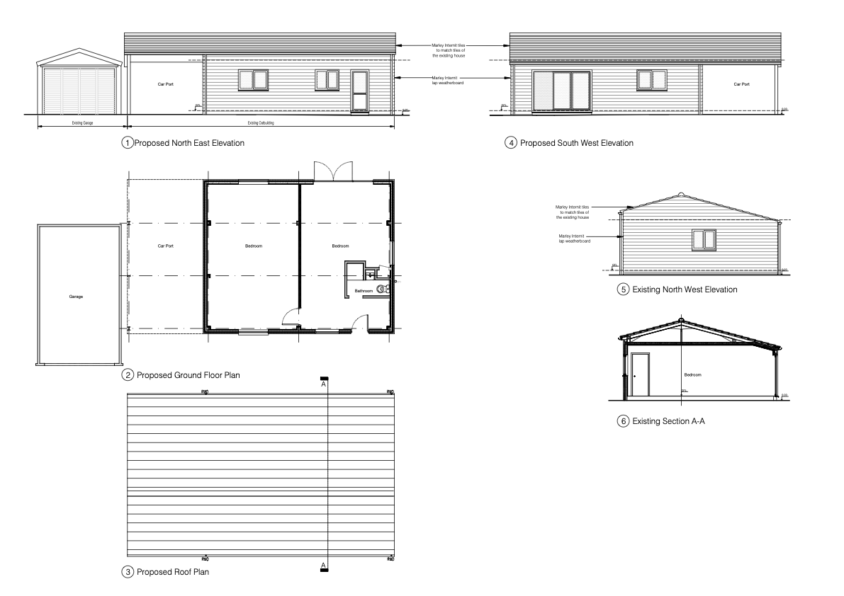
Modification of the existing outbuilding to create a Granny Annex in Oakington
The site is located outside the Development framework of Oakington and is considered to be in the countryside. The proposed improvements included domesticating the existing outbuilding by providing an additional accommodation for a dependant relative and replacing outside materials.
