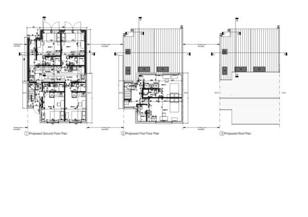
Rear Extension and conversion of residencial house into small HMO in Whitfield Close, Cambridge
Witness the magic of transformation in our recent project—a rundown 3-bedroom mid-terrace council house in Cambridge turned into a thriving 6-bedroom House in Multiple Occupation (HMO). To amplify the living space, we strategically added a rear extension, seamlessly expanding the house into two additional bedrooms.
The extension, permitted by prior approval for larger extensions, reaches beyond the original rear wall by 6m. With thoughtful design, we ensured the height at eaves remains at 2.45m, and at the highest point, it reaches 3.6m. Situated in the middle of the terrace with a narrow garden, our approach minimizes any potential impact on neighboring properties, prioritizing privacy and space.
Step inside to discover a haven of individuality—each bedroom boasts an ensuite bathroom and a convenient kitchenette. The heart of communal living lies in the well-designed kitchen area, featuring a cozy breakfast bar. Explore our portfolio and see how we turn limitations into opportunities for harmonious, spacious living.

