Roof Extension in Little Thetford, Ely
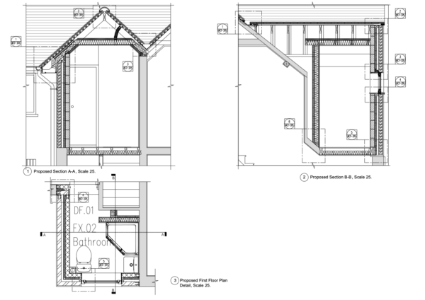
The site is located outside the development framework of Little Thetford. It is is an interwar L shape detached house with a hip and gable plain tile roof. The new roof extension to accomodate a small ensuite bathroom is proposed with the sloping roof on the first floor next to the master bedroom above the front door and entrance area. The new roof extension forms a second gable next to the main gable on the front elevation.

