TVR Design Consultancy ~ Architectural services,

research & teaching programmes in UK and Europe.

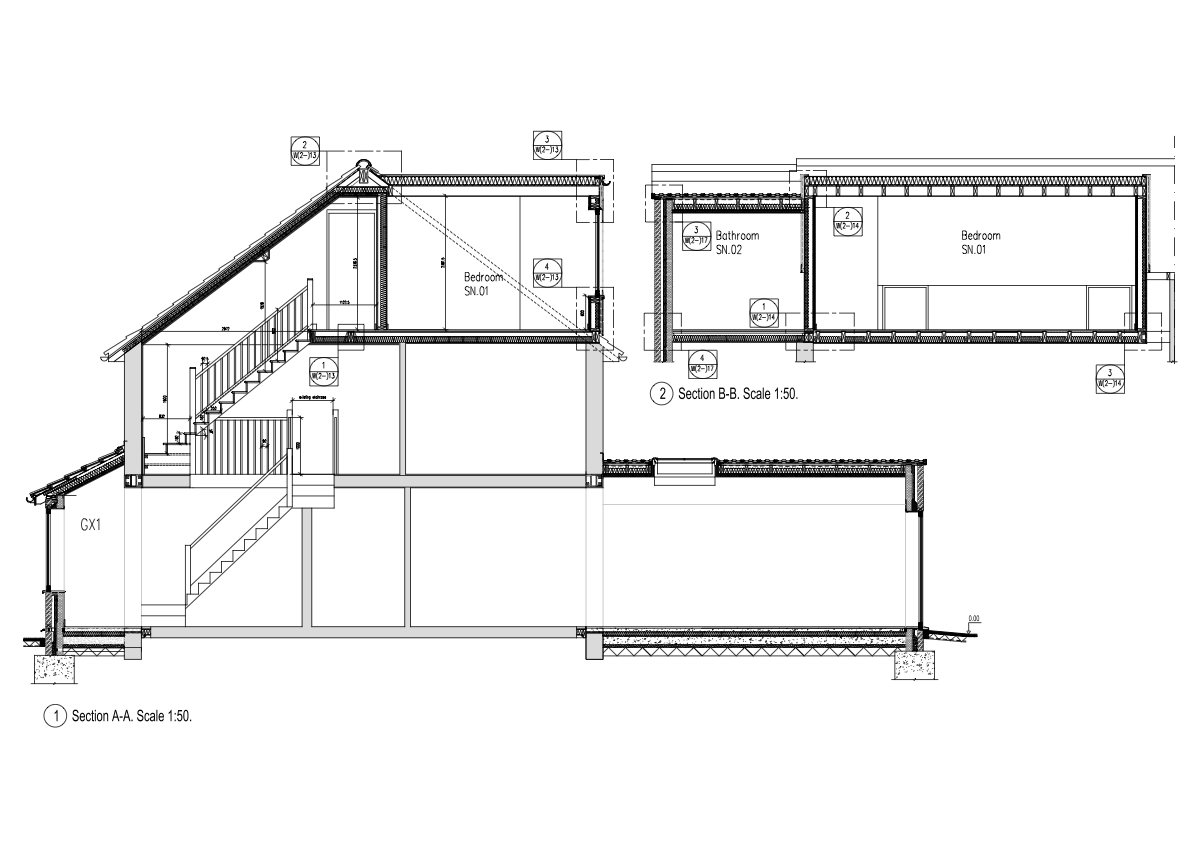
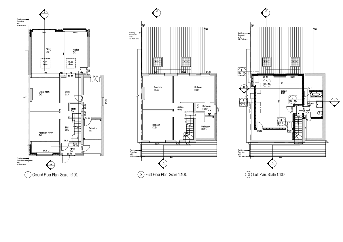
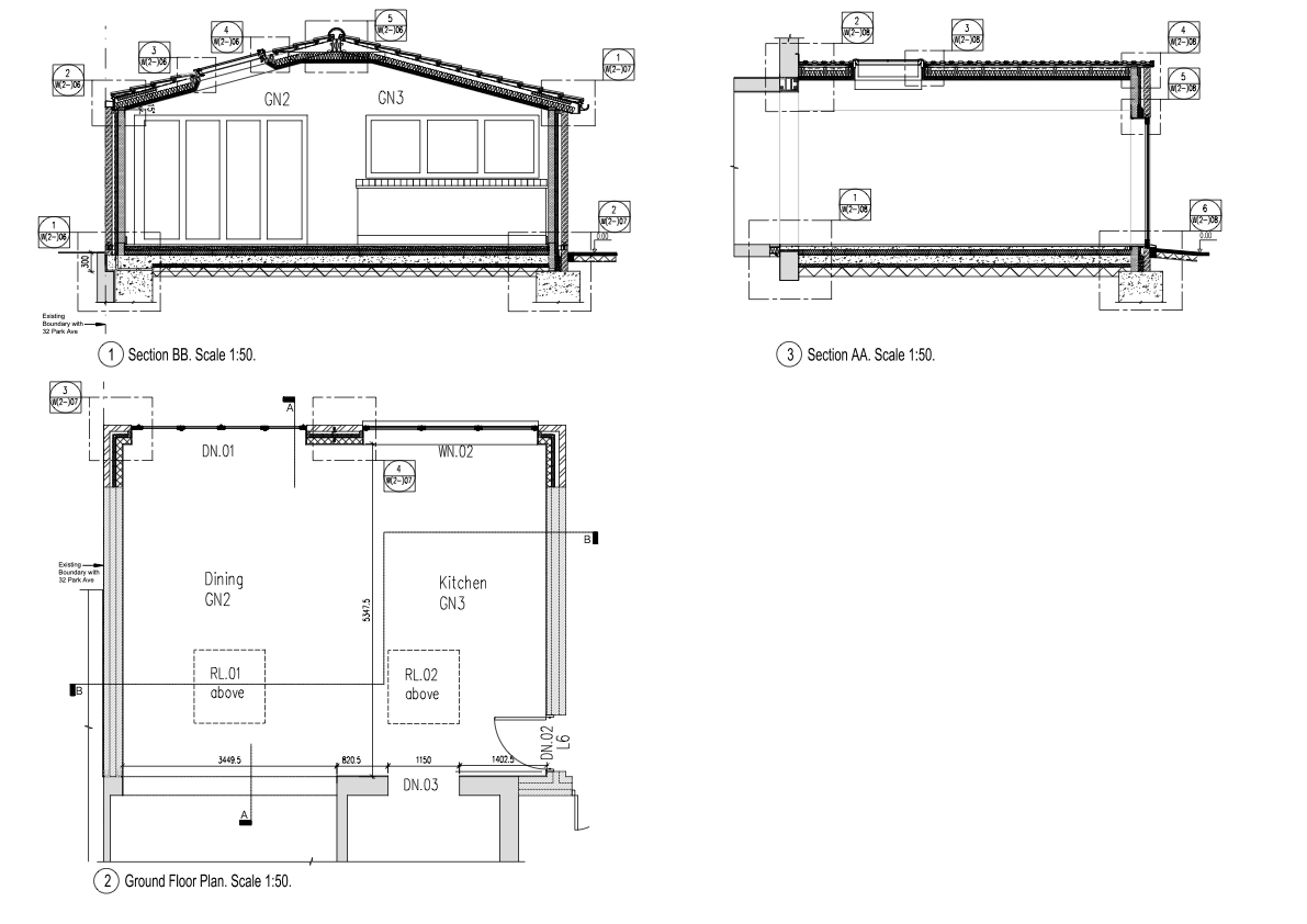
Roof Extension, Loft conversion and Rear Extension in Park Avenue, Histon