TVR Design Consultancy ~ Architectural services,

research & teaching programmes in UK and Europe.

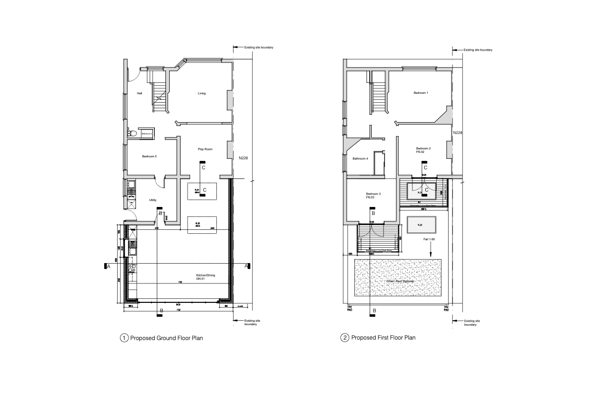
Single Storey Flat Roof Rear Extension with Roof Terrace and Roof Extensions in Milton Road, Cambridge

The Ground Floor Rear Extension takes the full rear width of the existing house and in line with the rear ground floor of the neighbouring extension. Roof Extensions provided the house with the additional space in the loft. Extensions has a modern appearance with big glass panes in double-glazed doors and windows to form contemporary look of rear elevation.