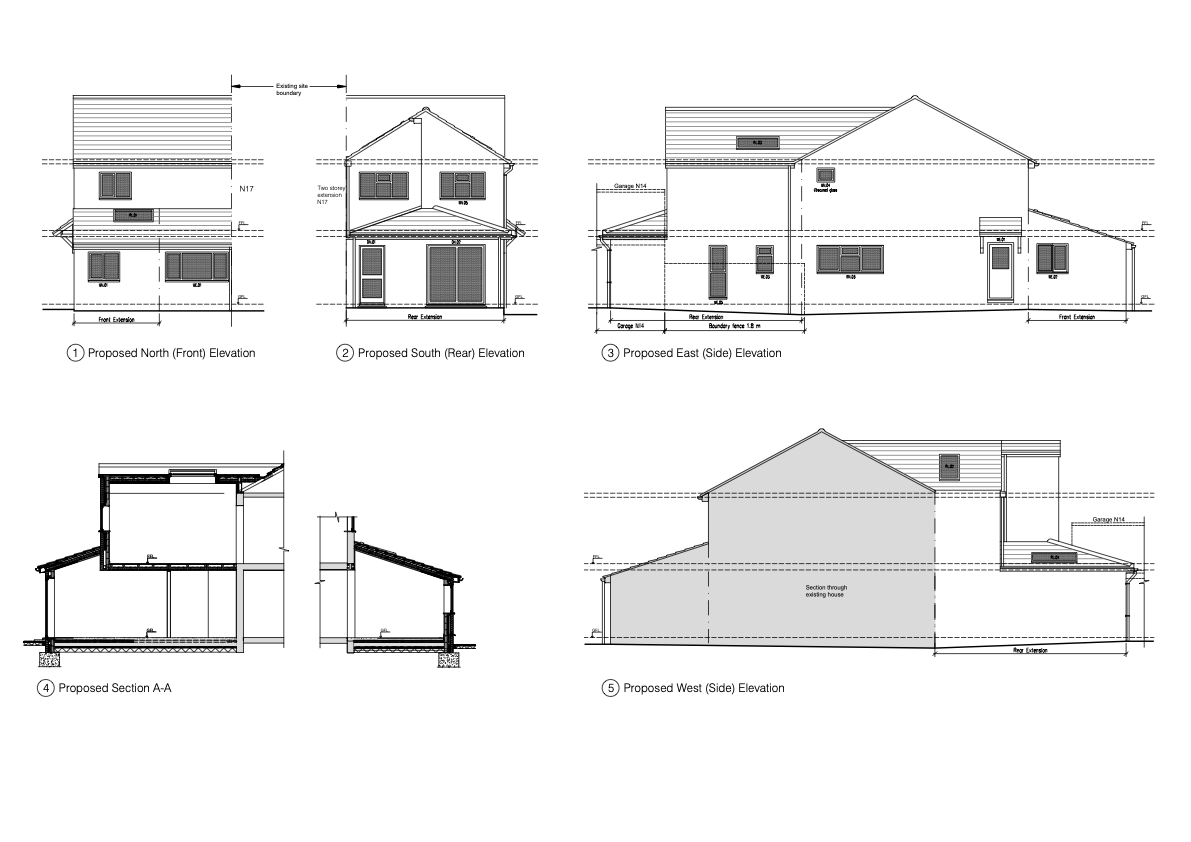
Single Storey Front Extension and Two Story Rear Extension in Missleton Court, Cambridge
Missleton Court is a semidetached 3-bedroom property located in a quiet area of Cherry Hinton in Cambridge. The design aimed to provide a specially equipped personal space to the owner’s daughter, who has a significant learning disability. The Rear Extension has two floors. The ground floor provides the house with new Bedroom and ensuite bathroom, toilet and utility room. The first floor provides the house with the”special need” Bedroom 4 and ensuite bathroom and an extra space for Bedroom 2. The west part of the First Floor Extension is lined with the first floor rear extension of the neightbouring property, forming with it a double gable at the rear.




