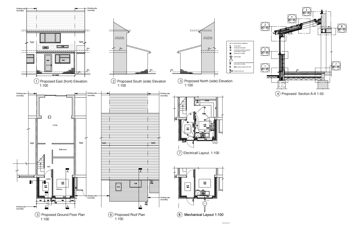
Single Storey Front Extension in Sawston
The house is the mid terrace property of 4 houses, is located in a quiet residential area of Sawston. The Front Extension extends by 2.5 m to the front garden and provides the house with a lobby and extra space to the existing kitchen. It runs from the boundary to the boundary and takes the full width of the existing house.

