Single Storey Rear Extension and replacement of existing garage with New Outbuilding in Sutton
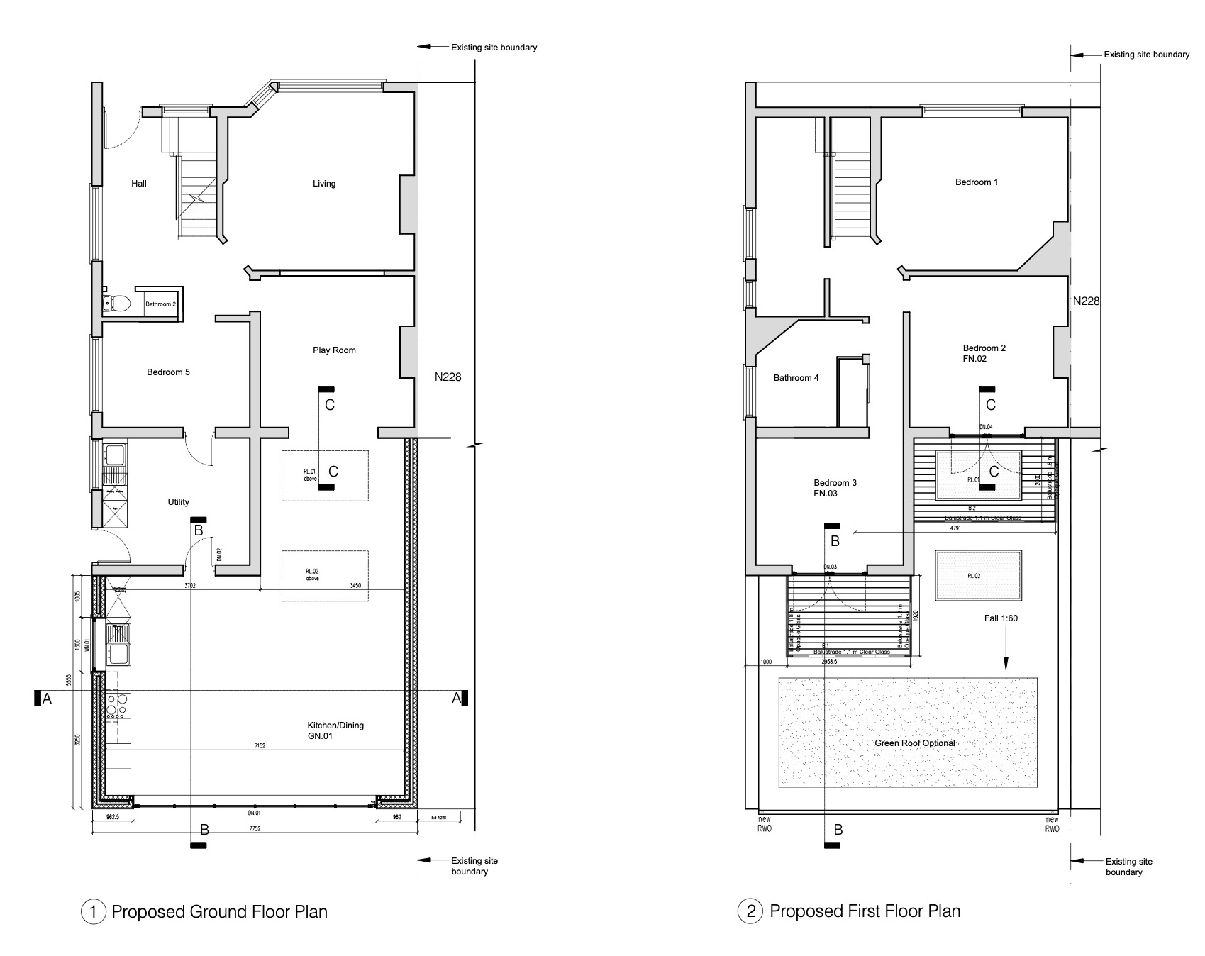
The property is a semidetached house which was built around 1800 with a rear wing and conservatory. The conservatory was used as a habitable room, but it did not comply with current Building Regulation standards for habitable accommodation. The garage was of brickwork construction under a flat felted roof in a poor condition. The concervatory was demolished and the new rear extension took the full width of the house at rear. It provided the house with ground floor bedroom with en-suite bathroom and new kitchen and dining facilities. The South part of the rear extension extends forward into the rear garden, forming a small patio between its side wall and the boundary fence. The low profile pitched roof of the North part of roof of the rear extension slopes down towards the boundary and the South part lines with the South wall of the main house , extending to rear as a single sloping roof .





