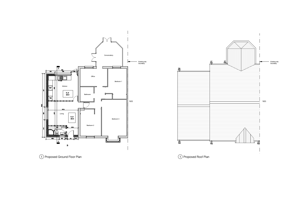
Single Storey Side Extension in Fulbourn
The house is a semi-detached bungalow, in need of updating for growing family. The Side Extension provided the house with a spacious kitchen, living/dining area and a new bathroom and creates an opportunity to turn the existing living room into a Bedroom 3. The Side Extension is subservient to the main house by sympathetic design. It is pushed back from the front elevation of the existing house. The roof ridge is lower then the roof ridge of the existing house. The eaves of the Side Extension are lined up with the eaves of the existing house.


