TVR Design Consultancy ~ Architectural services,

research & teaching programmes in UK and Europe.

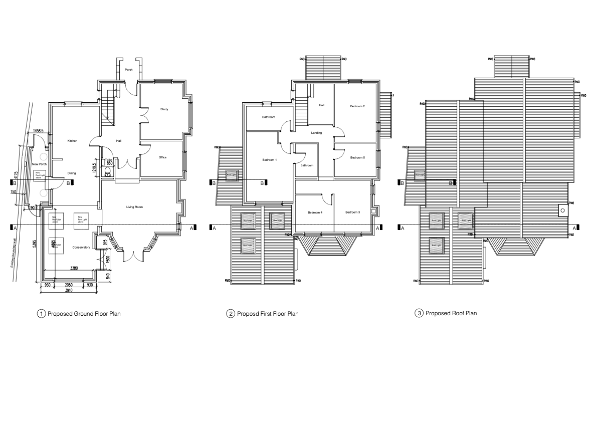
Single Story Extension in Grantchester, Cambridge

Here is our new Rear Extension in concervation area of Grantchester, next to famouse Vicarage! Clothes drying on the sunny Easter Day!  The extension has a gothic style window for the new the play room.