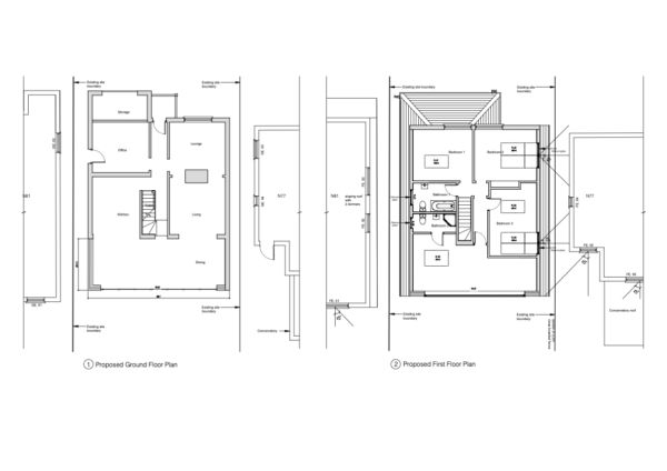
Two Storey Rear and Side Roof Extensions with obscure glazing roof lights in Great Shelford
The house is a detached residential property located within Great Shelford Village Framework. The side roof extensions designed to increase the size of the first floor bedrooms and to provide these bedrooms with additional windows to improve their lighting. 45 Degree rule is used to establish the position of the roof lights. Two “velux combinations” of sloping roof lights are used. These roof lights have two integrated part on each slope of the roof. The lower part of these roof lights, has obscure glass to minimise overlooking the neighbouring garden. Standing seam facia is used for the first floor extension for a modern look.

