Two Storey Side Extension in new development in Waterbeach
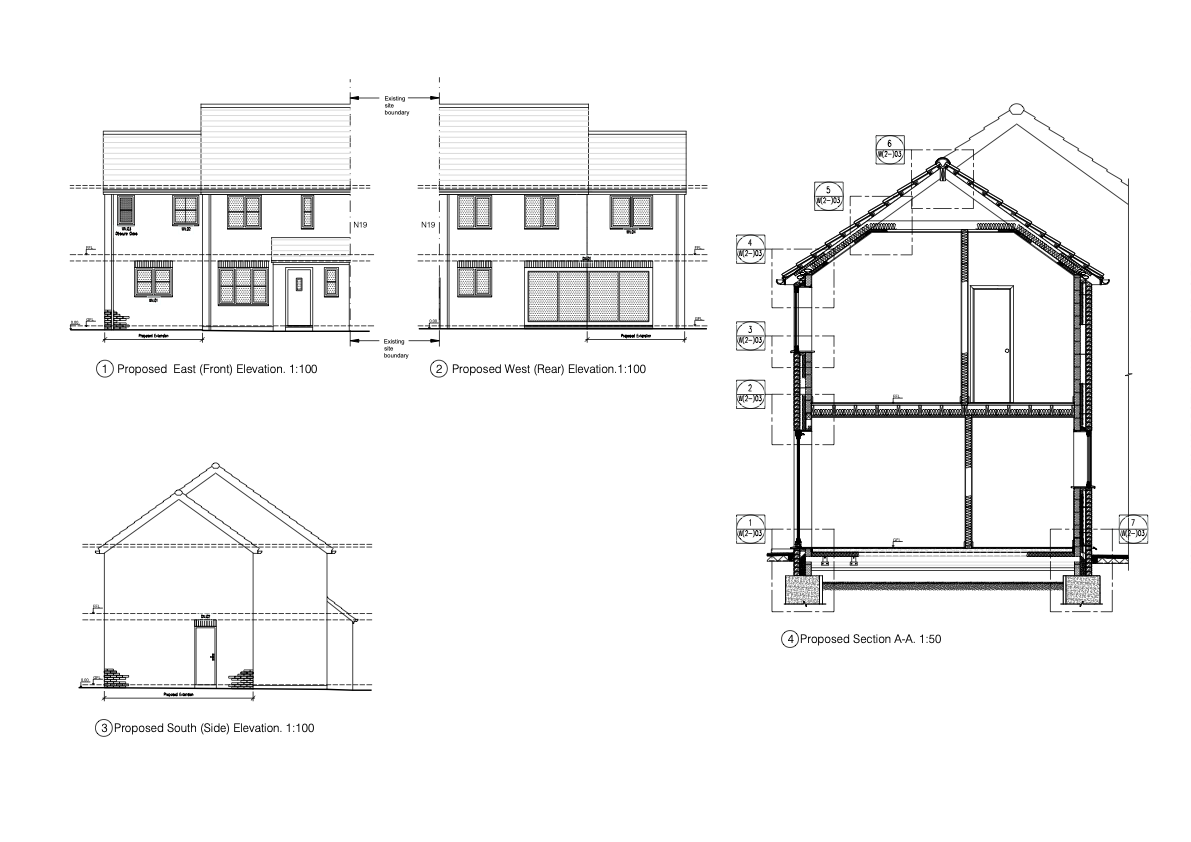
Discover our latest triumph in architectural innovation with the completion of a striking first-floor side extension at a new development in Waterbeach. The property, a high-quality semi-detached home boasting pale bricks under a single pantile roof, underwent a transformative enhancement to elevate its living spaces and increase its market value.
The ground floor extension seamlessly expanded the existing kitchen-dining area, transforming it into an open-plan kitchen-dining-living space—a perfect fit for the contemporary needs of a modern family. A new utility room was thoughtfully integrated, enhancing functionality. Patio doors flood the new living/dining room with natural light and provide seamless access to the rear garden.
Moving upward, the first floor extension introduces a new Bedroom 3, an improved Bathroom, and a hall adorned with a front-facing window. This thoughtful extension not only expands the property footprint but also enhances the overall living experience, ensuring both comfort and aesthetic appeal. Elevate your lifestyle with our architectural expertise!


