Two Story Extension & New Porch in Waterbeach
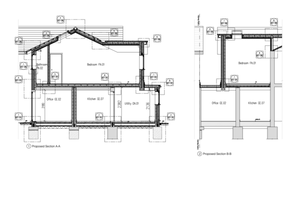
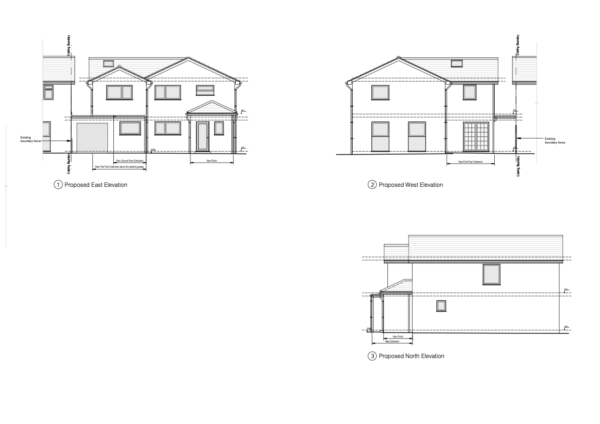
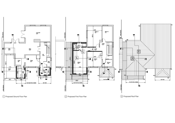
Embark on a journey through architectural ingenuity with our recent project—a house improvement that defied complexity. The transformation involved a blend of the existing garage and its side extension, giving the clients to a new side ground floor hallway with the new entrance.
The structural intricacies continue upward, where the first floor extension seamlessly integrates with the existing dwelling house. Ascend to discover a haven of modern luxury—a new bedroom adorned with an ensuite bath. This improvement not only redefines the house’s structure but elevates the entire living experience.
Witness the art of transformation, where complicated structures become showcases of architectural brilliance. Explore our portfolio and see how we turn challenges into triumphs.





